π₯ Ending February with A Bang! π₯
π Market Update & News π°
Smart Real Estate Moves: Insights for Buyers, Sellers & Investors
The real estate market is always changingβstay ahead of the curve! Whether you're buying, selling, renting, or investing, my newsletter delivers expert insights to help you make the best decisions.
πΉ House Video & Tours πΊ
Step Inside This Stunning Austin Home!
Take a tour of this beautiful 4-bed, 3-bath in North Central Austin!
With a chefβs kitchen, luxurious finishes, and an expansive backyard, this home is the perfect blend of style and comfort. Ready to see more?
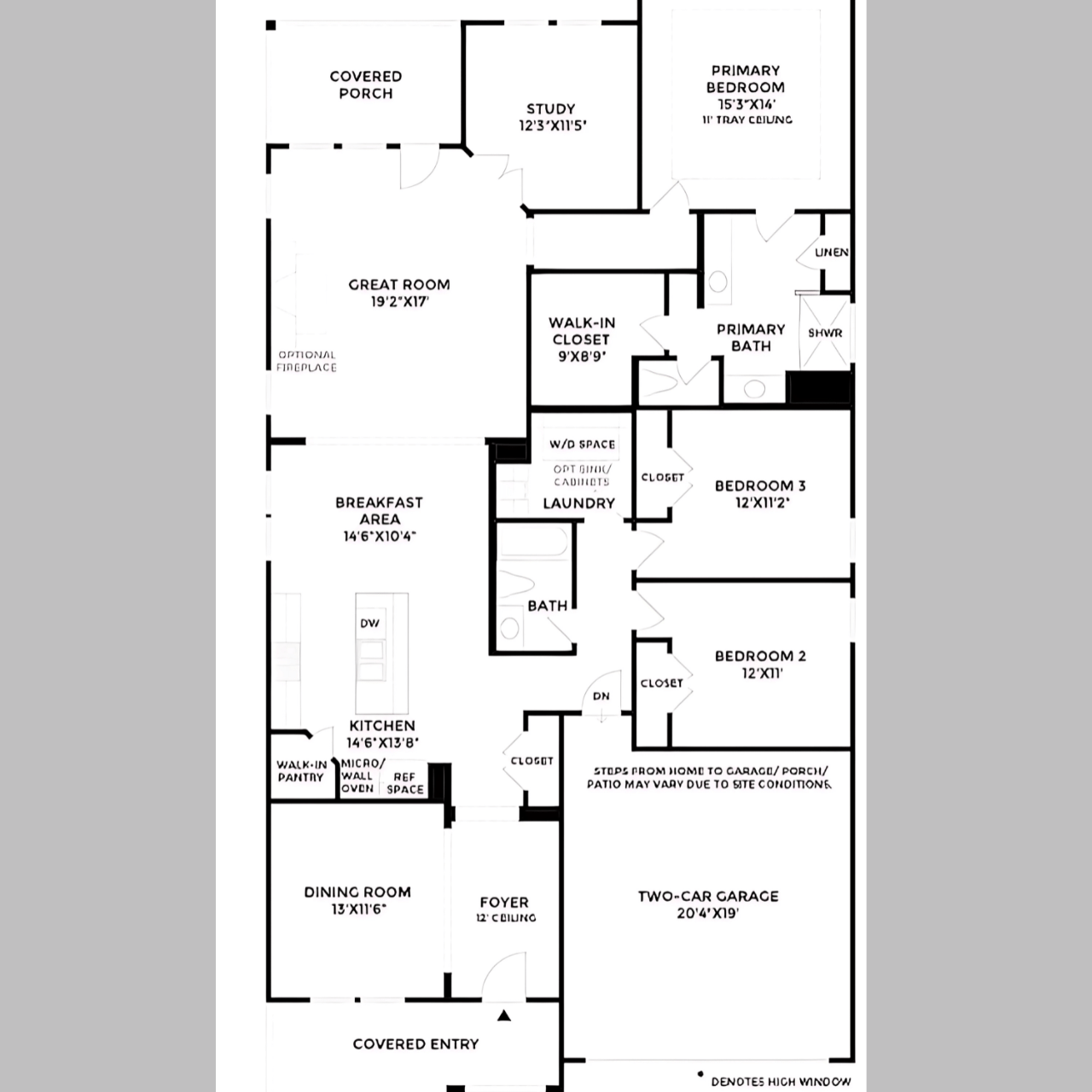
π¨ New Construction ποΈ
This single-story home blends style and function with open-concept living, a formal dining room, and a covered porch.
The chefβs kitchen features a center island and walk-in pantry, while the primary suite offers a tray ceiling, spa-like bath, and walk-in closet. Additional highlights include a versatile office, spacious secondary bedrooms, and a 2β3 car garageβdesigned for effortless living.
Explore your ideal home at Sun Chase in Del Valle, TX.
With homes ranging from 1,610 to 2,380 sq ft, featuring 3 to 5 bedrooms, 2-car garages, and modern finishes, thereβs a perfect fit for every lifestyle.
Enjoy access to top community amenities, all starting at $349,990. Find your space today!

March Giveaway
I love hearing from you! That's why I'm giving a prize to lucky commenters each month! To enter, comment thoughtfully on any of my YouTube videos.
πΈ Featured Homes π
This spacious 4-bedroom, 3-bathroom home in Hutto provides 2,194 square feet of living space. It features a bright, open floor plan, a well-equipped kitchen, and a two-car garage. Located within the desirable Hutto ISD, it offers comfort and convenience for families.
Stunning Orchard Ridge 4-bedroom, 2.5-bath home perfect for families and entertaining! Spacious open floor plan, dream kitchen, luxurious primary suite, plus 3 bedrooms, loft, and bath upstairs. Private backyard, patio, fenced yard, and community pool/trails.
Deal of the Week!
This weekβs deal is a brand-new 3-bedroom home in Liberty Hill with modern finishes and a spacious layout.
Key Highlights:
Bedrooms and Bathrooms: 3 bedrooms and 2 bathrooms in a thoughtfully designed floor plan.
Size and Layout: 2,109 sqft of living space on a 7,143 sqft lot with open-concept living areas.
Kitchen and Dining: A chefβs dream with a center island, breakfast bar, and stainless steel appliances.
Interior Features: High ceilings, stylish flooring, and energy-efficient upgrades throughout.
Primary Suite: Spacious retreat with a walk-in closet, dual vanities, and a spa-like bathroom.
Community and Location: Located in a growing community with top-rated schools, parks, and easy highway access.
π¨ $419,950 (many new interest rate options!)
If you are interested, just reply, and I will get you all the details!
π Local Events ποΈ
Support local Asian American creatives at this vibrant spring market at the Asian American Resource Center! Shop from 20+ talented makers, artists, and bakers, connect with local organizations, and enjoy a family-friendly day of community and culture.
Roar into Fun at Dino Days!
Step back in time at Hartman Prehistoric Garden in Zilker Botanical Garden! Explore the lush landscapes of Cretaceous-era Texas, meet local paleontologists for interactive fossil presentations, and enjoy family-friendly activities.
Learn the ins and outs of home buying!
Our seminar provides a clear roadmap for first-time buyers, making the process less daunting.
π§πΌβπΎ Farmer's Markets π
π Restaurants & CafΓ©s β
We Support Local
We're loco for local! (See what we did there? π) If you're a local business doing amazing things, we want to feature you in our newsletter!
ποΈ Store for All Things Real Estate π¬
Refer-A-Friend
Know someone dreaming of a new home or looking to make a smart real estate move? I provide expert guidance and personalized service to make the process smooth and successful.



















